位置:首页>产品中心> 球阀

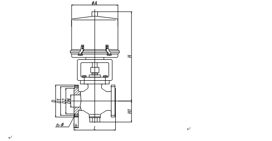
  • 电动调节球阀
  • 产品概述: